Protezione dell'Ambiente e difesa del suolo

IMPIANTO DI DEPURAZIONE MASSAFRA


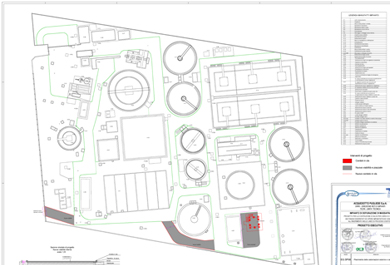
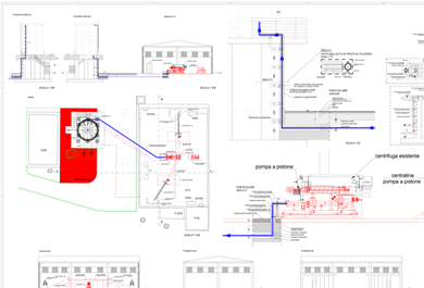
Il progetto definitivo relativo all’impianto di depurazione di Massafra (TA) ha consistito nella realizzazione di un silos di stoccaggio dei fanghi nell’area destinata ai letti di essiccamento, in disuso, e la relativa sistemazione della viabilità interna dell’impianto. Si prevede anche la realizzazione di un nuovo ingresso carrabile per facilitare la movimentazione dei mezzi per lo scarico del materiale disidratato.