Protezione dell'Ambiente e difesa del suolo

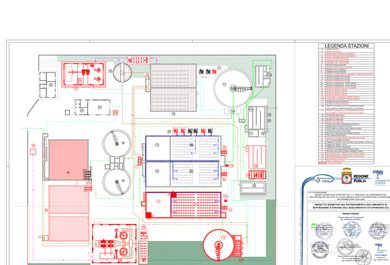
IMPIANTO DI DEPURAZIONE SUPERSANO


Il progetto preliminare redatto dal gruppo di lavoro interno all’Acquedotto Pugliese S.p.A., per la risoluzione degli aspetti gestionali ed impiantistici atti a garantire i parametri allo scarico conformi alla normativa vigente, prevede i seguenti interventi:
- Rifacimento ex-novo della stazione di grigliatura e suo confinamento al fine di contenere e monitorare le emissioni odorigene della grigliatura, previa demolizione dell’attuale stazione;
- Realizzare una stazione di dissabbiatura/disoleatura, inesistente allo stato attuale;
- Potenziamento del comparto di denitrificazione e di ossidazione, insufficienti a fronteggiare il carico in ingresso previsto dal PTA;
- Potenziamento del comparto di sedimentazione secondaria, insufficiente a fronteggiare il carico in ingresso previsto dal PTA;
- Potenziamento della stazione di filtrazione, insufficiente a fronteggiare il carico in ingresso previsto dal PTA;
- Interventi per garantire gli standard minimi di sicurezza degli operatori addetti alla gestione;
- Realizzare un muro di sostegno perimetrale per garantire condizioni di sicurezza;
- Monitoraggio on-line, ovvero alla rilevazione dei principali parametri che caratterizzano il processo di depurazione biologica;
- Adeguamento dell’impianto elettrico, per consentire l’alimentazione delle nuove utenze, ordinarie e privilegiate, in conformità alle normative vigenti;
A seguito di incontri con il Responsabile Unico del Procedimento ed i funzionari dell’Acquedotto Pugliese S.p.A. addetti alla gestione dell’impianto, lo Studio AC3 ha convenuto il potenziamento delle esistenti stazioni di trattamento in maniera tale che la configurazione dell’impianto di depurazione di Supersano risulta essere la seguente:
A) LINEA ACQUE:
- pretrattamenti quali grigliatura grossolana, grigliatura fine e dissabbiatura-disoleatura in un unico locale;
- equalizzazione: ampliamento di quella esistente;
- comparto biologico: n.3 linee indipendenti, di cui due esistenti e la terza di progetto;
- sedimentazione secondaria: n.1 sedimentatore del diametro interno di 16,00 mt (esistente) al servizio delle esistenti due linee del comparto biologico, e n.1 sedimentatori del diametro interno di 13,00 mt (diprogetto) al servizio della linea di progetto del comparto biologico;
- filtrazione meccanica (di progetto) al servizio dell’intero impianto;
- disinfezione (esistente) del refluo trattato dall’intero impianto;
B) LINEA FANGHI:
- sollevamento fanghi di supero e ricircolo al servizio del comparto biologico esistente e di progetto;
- stabilizzazione aerobica dei fanghi (esistente);
- pre-ispessimento statico meccanizzato dei fanghi (esistente);
- disidratazione meccanica dei fanghi (di progetto).
In funzione delle stazioni di trattamento come sopra determinate, si prevede la demolizione/dismissione delle seguenti stazioni:
- Stazione di grigliatura;
- Stazione di trattamento dei bottini;
- Stazione di disidratazione meccanica dei fanghi;
- Modifica del locale gruppo elettrogeno;
- Delocalizzazione del sollevamento dei dreni.