Protezione dell'Ambiente e difesa del suolo

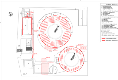
IMPIANTO DI DEPURAZIONE BERNALDA


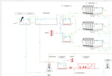
Il progetto definitivo commissionato dall’Acquedotto Lucano relativo ai due impianti di depurazione dell’abitato di Bernalda, nelle località Ricilleto e Metaponto Lido, riguarda le attività di “revamping” consistenti nella sostituzione delle apparecchiature elettromeccaniche e interventi di ripristino delle pareti delle vasche con problemi di perdite di liquami o degrado del copriferro. Per entrambi gli impianti si prevede la sostituzione dell’attuale sistema di fornitura di ossigeno delle stazioni di ossidazione-nitrificazione e di digestione aerobica dei fanghi, che avviene dall’alto tramite turbine superficiali, ad un sistema di tappeti a bolle fini posati sul fondo delle vasche. Il sistema proposto offre la garanzia di un’equaripartizione dell’ossigeno in tutte le zone della vasca eliminando le cosiddette “zone morte” agli angoli delle stesse. Il sistema di produzione dell’aria avviene a mezzo di compressori a tre lobi che sono asserviti ad inverter ed a un PLC che, tramite sonde installate in vasca, controlla il valore della concentrazione di O2 disciolto ed il valore dell’ammoniaca NH4+ . Il software modula il valore della concentrazione di O2 disciolto in funzione del valore dell’ammoniaca NH4+ tenendo conto dei valori di soglia stabiliti dall’utente. Al di sotto del valore di soglia del valore dell’ammoniaca, il gestore dell’impianto può programmare il software per due modalità: la prima è la cosiddetta “aerazione con soglia minima DO” fino a quando il valore di NH4+ non risale al disopra del valore di soglia, in maniera tale da evitare che i fanghi sedimentino in ossidazione. Una seconda scelta che può essere effettuata è quella del “Funzionamento in pausa/lavoro” nel senso che modifica la quantità di aria in funzione delle variazioni di carico. In ogni caso l’asservire la stazione di produzione dell’aria ad un PLC consente di ridurre al minimo il valore dell’energia spesa.